Risultati di ricerca

Casetta affiancata da ristrutturare

Prezzo di vendita 45.000 €
Num. imm. 1141-1
Tipo di immobile Casa indipendente
Anno di costruzione 1960
Condizione Da ristrutturare
Certificazione energetica Attestato di prestazione energetica (APE)
Anno di costruzione (da certificazione energetica) 1960
Classe energetica G
Città Montecchio Precalcino
Superficie abitabile 195 m²
Camere da letto 3
Bagni 1
Unità abitative 1
Alimentazione riscaldamento Legno
Impianto riscaldamento Assente
Pavimento Piastrelle
Ascensore Senza ascensore
Prezzo di vendita 45.000 € Num. imm. 1141-1
Tipo di immobile Casa indipendente Anno di costruzione 1960
Condizione Da ristrutturare Certificazione energetica Attestato di prestazione energetica (APE)
Anno di costruzione (da certificazione energetica) 1960 Classe energetica G
Città Montecchio Precalcino Superficie abitabile 195 m²
Camere da letto 3 Bagni 1
Unità abitative 1 Alimentazione riscaldamento Legno
Impianto riscaldamento Assente Pavimento Piastrelle
Ascensore Senza ascensore
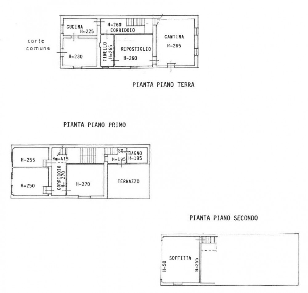
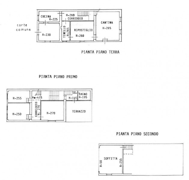
Descrizione dell`immobile Casetta affiancata situata nel monte di Montecchio Precalcino. L’immobile conserva le caratteristiche tipiche delle abitazioni dell’epoca e nel tempo è stato eseguito il rifacimento dei solai.

La casa si sviluppa su due livelli. Al piano terra si trovano la cucina, il soggiorno e il bagno, posizionato a metà scala. Al primo piano sono presenti tre camere da letto e la terrazza abitabile.

Completa la proprietà una porzione dell’immobile al piano terra con possibilità di ricavare il garage.
L’abitazione necessita di ristrutturazione e rappresenta una soluzione ideale per chi desidera una casa da ristrutturare e personalizzare, in un contesto riservato e silenzioso.

Ottima per investitori o imprese edili per eventuale rivendita dell'immobile ristrutturato.

RIFERIMENTO ANNUNCIO: 1141
PER INFORMAZIONI CHIAMA: 0445 1630150 (oppure contattaci subito su WhatsApp al numero 04451864780, indicando il riferimento dell’annuncio).

Piano Immobiliare
La Tua Casa

 
Certificazione energetica
Tipologia: Attestato di prestazione energetica (APE)
Anno di costruzione (da certificazione energetica): 1960

Energieausweis Skala Energieausweis Zeiger

Altri immobili interessanti

1 Offerte trovate

2

Ristorante/pizzeria in affitto a Mo ...

Partecipa all'evento Open House fisico del dalle alle . Entra nell'immobile per iscriverti!
Montecchio Precalcino

Canone di locazione (spese di riscaldamento escluse): 2.200 €

1
Cerchi casa?

Inserisci la tua richiesta e ricevi le nostre proposte

Fai la tua richiesta